
MATburo is een klein adviesbureau, actief in de Randstad.
- ✓Wij bieden heldere aanpak, solide en snelle uitvoering
- ✓Wij zijn flexibel, professioneel, luisteren goed naar uw wensen en denken met u mee op zoek naar de beste oplossing.
MATburo is gespecialiseerd in de volgende vakgebieden:
- ✓(her)inrichten van woningen
- ✓splistingstekeningen
- ✓gedetailleerde plattegronden
- ✓oppervlaktemetingen volgens NEN 2580
- ✓terreintekeningen van bedrijventerreinen inclusief ondergrondse infra, en splitsingen van kavels
- ✓ontwikkelen van site-plans voor logistieke panden en city-docks
- ✓flexibele ondersteuning in CAD tekenwerk wanneer u dit nodig heeft! (20 jaar ervaring)
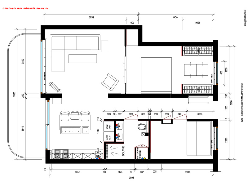
1 Advies inrichting & woningtransformatie
Metamorfose en ook “low budget” aanpassingen/transformatie van uw nieuwe of bestaande woning. Zie voorbeeld foto’s van een aantal van de door ons gerealiseerde projecten.
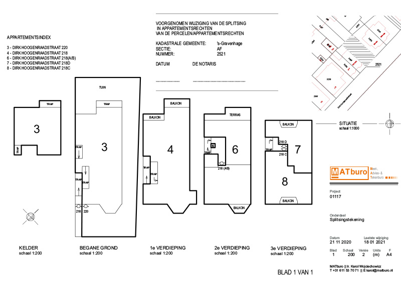
2 Splitsingstekeningen
MATburo heeft ruime ervaring (>10 jaar) in het maken van splitsingstekeningen.
Bij een splitsing van een appartementencomplex worden de eigendomsrechten vastgesteld binnen een bouwcomplex. Appartementsrechten zijn lastig te omschrijven. Daarom worden splitsingstekeningen gemaakt met daarin aangegeven grenzen tussen de verschillende eigendommen en gemeenschappelijke ruimten. Deze tekeningen worden door de notaris gebruikt bij het opstellen van de splitsingsakte.
Kosten
De kosten voor het maken van een splitsingstekening zijn afhankelijk van een aantal factoren:
- ✓het aantal appartementsrechten
- ✓beschikbare tekeningen
- ✓wel of geen controle op locatie
Tot 3 appartementsrechten, wanneer bouwtekeningen aanwezig zijn, geldt het standaard tarief vanaf €200,- (excl. BTW) + €50,- per extra appartementsrecht.
Aanpak
- ✓- U levert tekeningen en instructies aan MATburo
- ✓- MATburo maakt een splitsingstekening en stuurt deze op voor de controle
- ✓- MATburo verwerkt eventuele opmerkingen en maakt de tekening definitief
Indien er geen tekeningen aanwezig zijn gaat MATburo de volgende stappen ondernemen:
- ✓Beschikbare stukken opvragen bij het gemeentelijk archief. Deze worden dan gebruikt als onderlegger in het CAD programma.
- ✓Inmeten op locatie
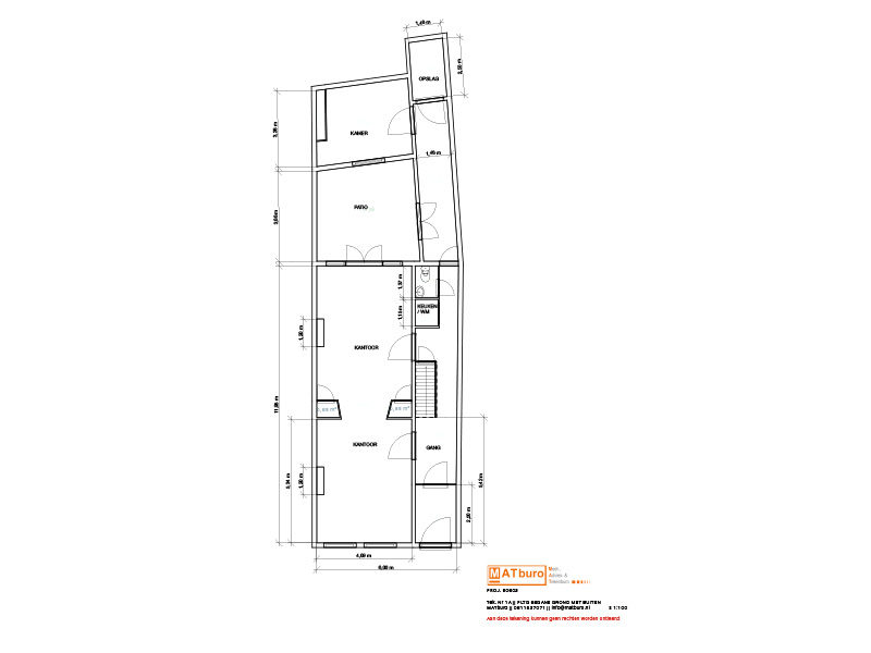
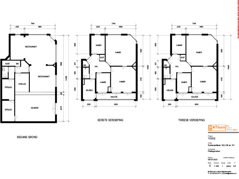
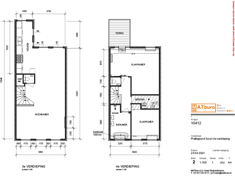
3 Plattegronden, vluchtroute-plans, NEN 2580 metingen en certificaten
Plattegronden en vluchtroute-plans worden gemaakt op basis van:
- ✓de door u beschikbaar gestelde bouwtekeningen.
- ✓de door ons voorafgaand uitgevoerde metingen. Hiervoor wordt moderne apparatuur gebruikt van het merk Leica.
Plattegronden worden in kleur uitgevoerd en voorzien van basis maatlijnen om de tekening overzichtelijk te houden voor presentaties (Internet/Funda). Deze kunnen we aanleveren in verschilde gewenste extensies. Indien gewenst, kunnen er ook oppervlakten of inhouden worden vermeld op de tekeningen.
Voor de NEN 2580 meting wordt een officieel NEN 2580 certificaat uitgegeven. Met de NEN 2580 metingen richten wij ons voornamelijk op kantoren en bedrijven waar vooral BVO en VVO van belang is.
4 Bedrijventerreinen en ontwikkelen van logistieke panden
Behalve gedetailleerde plattegronden is MATburo ook actief op het gebied van terreintekeningen. Het betreft hier hoofdzakelijk bedrijventerreinen. Wij voeren uit metingen van wegen, gebouwen en leidingtracés en leggen de resultaten vast, zodat deze terreintekeningen altijd ‘up to date’ zijn.
Na een grondig analyse van de randvoorwaarden, bestemmingsplannen, parkeernormen overige eisen gesteld door gemeenten en andere instanties, werken we aan om een optimaal logistiek pand te projecteren op een gegeven plot.

1 Voorbeelden (advies inrichting & woningtransformatie)

2 Voorbeelden (splitsingstekeningen)

3 Voorbeelden (plattegronden, vluchtroute-plans, NEN 2580 metingen en certificaten)

4 Voorbeelden (bedrijventerreinen en ontwikkelen van logistieke panden)


Tot uw dienst!